简介:ABB工业机器人常见故障处理 1. 开机示教器显示如下 1) 如果机器人开机,示教器一直显示connecting to the robot controller,如上图(robotware版本是白色界面,提示关键字一样),如何处理? 2) 上述情况是示教器和机器人主控制器之间没有建立通讯连接 3……
1. 开机示教器显示如下

1) 如果机器人开机,示教器一直显示connecting to the robot controller,如上图(robotware版本是白色界面,提示关键字一样),如何处理?
2) 上述情况是示教器和机器人主控制器之间没有建立通讯连接
3) 未建立连接的原因包括:
a) 机器人主机故障
b) 机器人主机内置的cf卡(sd卡)故障
c) 示教器到主机之间的网线松动等
4) 如何处理?
a) 检查主机是否正常,检查主机内sd卡是否正常?
5.15版本的主机是cf卡,在下述位置

5.61以上版本(包括robotware6版本)的主机是sd卡,在下述主机右侧

b) 检查示教器到主机网线是否连接正常?
示教器到主机上的网口均为主机绿色标签网口
2. 50296 smb内存差异

处理方法:以上为更换了SMB后,由于SMB内数据和控制柜内数据不一致导致
1) 点击ABB,校准,点击SMB内存

2) 选择高级
3) 选择清除SMB(由于更换了SMB,如果更换了控制器卡,则选择清除控制柜内存)

4) 点击“关闭”后选择“更新”

5) 选择替换SMB电路板

6)最后重新更新转数计数器即可
3. 20032转数计数器未更新

处理方法:
1) 手动移动机器人至各轴刻度线(现场如果不能同时到零刻度线,可以一个轴一个轴来)
2) 点击ABB,校准,点击更新转数计数器

3) 根据实际点击更新(更新时,示教器不用Enable)

4. 38103 与SMB的通信中断

处理方法:检查机器人控制柜下方的x2到机器人本体的smb线是否接好

5. 50057关节未同步

处理方法:
1) 此故障多数由于未正确关机导致。
2) 点击重启,选择高级,选择B启动,机器人将恢复到最近的 无措状态

6. 正确关机方式
正确关机方式不是直接断电,而是进入ABB,重新启动,选择高级,选择关机

7. 20252 电机温度高

处理方法:
1) 本体6个电机温控线为串联,最后接入接触器板(柜内左侧的A43)的x5阵脚

2) 可能某个轴温度过高,导致热敏电阻断开,可以打开电机盖板检查
3) 如果电机不热或者温控线断开,也可暂时短接A43接触器版的x5的1和2

8. 34316 电机电流错误

处理方法:
上述问题为驱动到对应电机的动力线未正确连接,(上图表示4轴)
可检查驱动对应轴到电机的连线
A41为驱动,X11为1轴输出,X12为2轴输出,X13为3轴输出,X14为4轴输出,X15为5轴输出,X16为6轴输出,

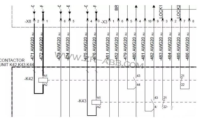
9. 37001 电机开启接触器错误

处理方法:
1) 此项表示接触器动作故障。
2) 接触器位于柜内左下角

3) 其中从左往右为K42,k43,k44
4) K42和k43控制电机开启
5) 以上错误为接触器的辅助触点故障(或者对应接线故障)
6) 接线如下图,根据下图检查接线

10. 50204动作监控

处理方法:
1) 以上表示2轴机器人可能发生碰撞
2) 如果确实发生碰撞,可以先临时关闭碰撞监控,缓慢移动机器人
3) 如何临时关闭碰撞监控?
示教器进入控制面板,点击监控

关闭手动操纵监控

4) 如果机器人未发生碰撞,依旧报这个错误,怀疑电机抱闸未打开
5) 检查接触器版附近的K44,以及K42 k43上的报闸控制线是否通,线号如下,
11. 50056关节碰撞

处理方法:
1) 以上表示1轴机器人可能发生碰撞
2) 如果确实发生碰撞,可以先临时关闭碰撞监控,缓慢移动机器人
3) 如何临时关闭碰撞监控?
示教器进入控制面板,点击监控

关闭手动操纵监控

4) 如果机器人未发生碰撞,依旧报这个错误,怀疑电机抱闸未打开
5) 检查接触器版附近的K44,以及K42 k43上的报闸控制线是否通,线号如下,

文章来源,
工业机器人维修官网:www.zr-abb.com